Simple & Natural 03
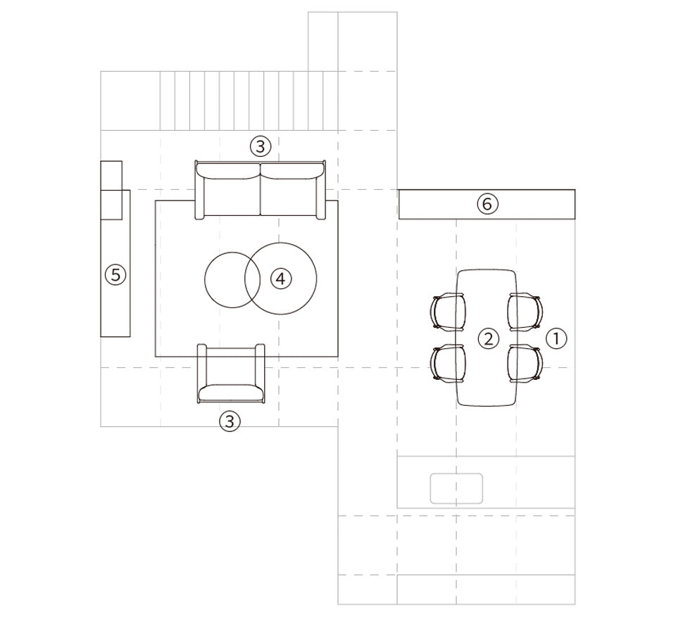
木質感あふれるコートハウスのリビングダイニング。家具の木部はブラウンを基調としてナチュラルな建築内装とコントラストを付け、全体的にアースカラーでまとめた優しく上質な空間です。手触りが良く、繊細で緻密なデザインのダイニングセット<KAMUY ダイニング>と、美しいフォルムと掛け心地を追求した<YUKAR リビング>は親和性があり、相性が良い組合せです。
【使用製品】
① カムイ ラックス ダイニング アームチェアー(座張)|北海道ナラMBR MG-BL/L3
② カムイ ラックス ダイニング テーブル 210×95|北海道ナラ MBR
③ ユカラ ラックス リビング ソファー 200, アームチェアー 103|北海道ナラ GY サルマッサ LGY/F4
④ ユカラ ラックス リビング 丸テーブル φ110・φ85|北海道ナラ GY
⑤ A+ LV-120-410|ナラ WNF+ナラ MBR
⑥ A+ SB-106-025|ナラ GY

LD 約19畳