North Noble 05
建物の雰囲気に合わせ、直線的でシャープなデザインの家具をベースに、アームが特長的なチェアー<AIMA>や天板に渓谷の造形を施したテーブル<キャニオン ダイニング>など、有機的なデザインを取り入れることで緊張感を和らげます。ナチュラルとモノトーンカラーを掛け合わせ、格好良さとやわらかな空気が共存する心地良い空間です。
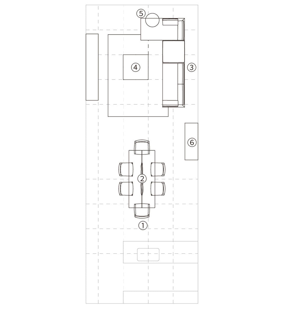
【使用製品】
① AIMA ダイニング アームチェアー|北海道ナラNF MG-BL/L3
② キャニオン ダイニング ソリッドテーブル 240×100|北海道ナラNF
③ クァイエット リビング(21) ロングシートR 本体+背・座クッション|北海道タモGY ビロGY/F4
④ クォード リビング(15) テーブル 91×91|北海道タモGY
⑤ モーラ ラックス リビング サイドテーブル Φ50|北海道ナラNF
⑥ A+ SH-112-129|北海道タモGY + 北海道タモNF

LD 約21畳