Simple & Natural 04
ナチュラルな内装に、家具はダークグレーで揃え、アクセントカラーにオレンジを取り入れた遊び心のあるカジュアルな雰囲気のリビングダイニング。クラフト感が漂うダイニングセット<コレント ダイニング>と、リビングには二人掛けのソファー<YUKAR リビング>とパーソナルチェアー<KAMUY リビング>を組み合わせ、コンパクトながら必要十分なサイズ感で、家族が集まって寛げる空間をつくり出します。
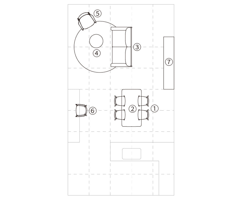
【使用製品】
① コレント ダイニング サイドチェアー(座張)|北海道ナラDGY RK-NL/L2
② コレント ダイニング ソリッドテーブル 160×85|北海道ナラDGY
③ カラ ラックス リビング ソファー 170|北海道ナラDGY トニカLGY/F4
④ カムイ ラックス リビング 丸テーブル φ58|北海道ナラDGY
⑤ カムイ ラックス リビング イージーチェアー(木背)|北海道ナラDGY トニカLGY/F4
⑥ コレント ダイニング アームチェアー(座張)|北海道ナラWNF RK-NL/L2
⑦ A+ ST-102-022|ナラWNF

LD 約16畳